RIMINI - NUOVA COSTRUZIONE |
| Riferimento: APPARTAMENTO 3 |
|
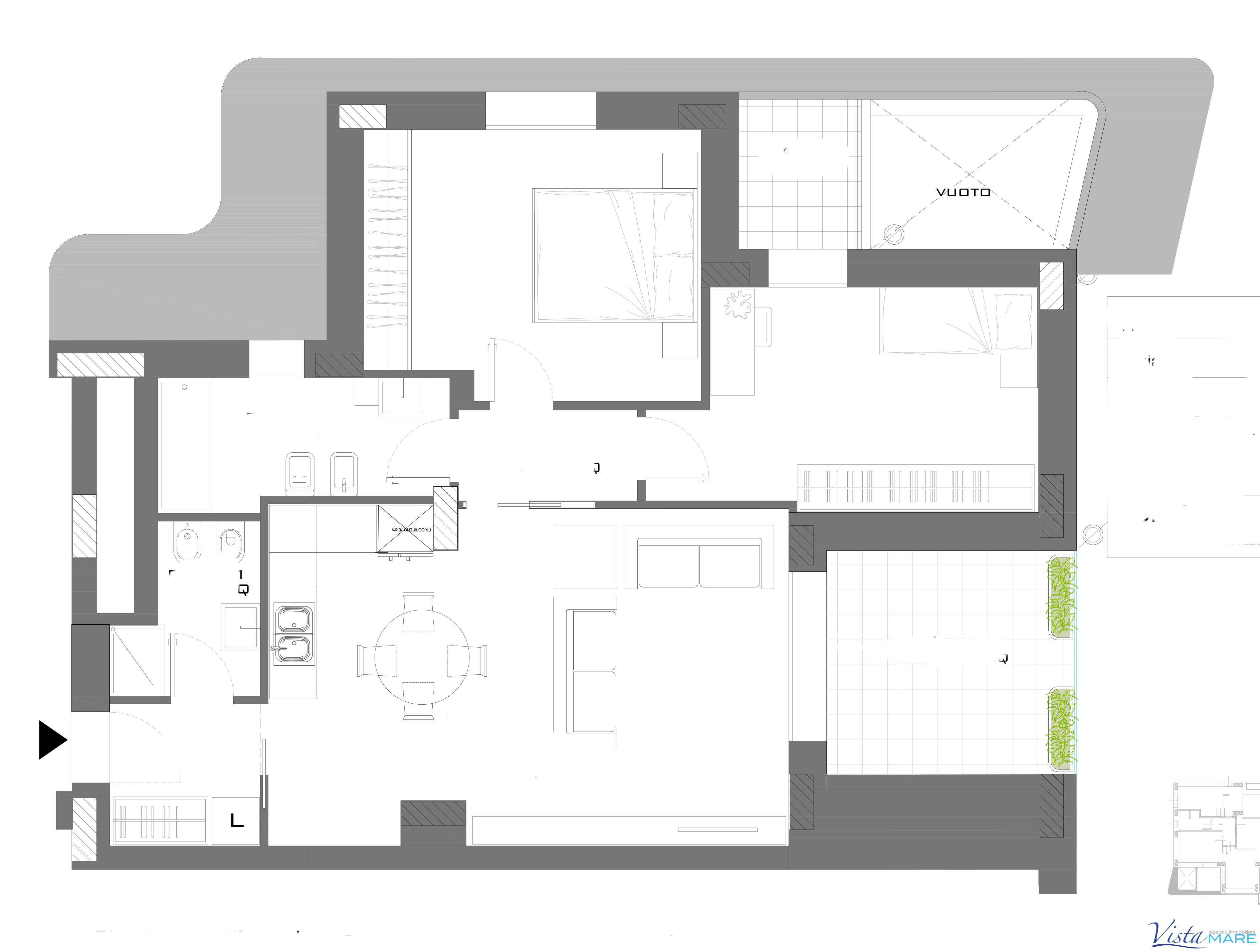
Mq 102
Piano Primo
|
| Informazioni in ufficio |
RIMINI - In fase di ultimazione, appartamento totalmente personalizzabile posto al piano primo della nuova "Residenza XXV Aprile". L'immobile si presenta con ingresso, spazioso soggiorno con reparto cottura a vista, disimpegno, due bagni e due camere da letto. Completo di balcone e di terrazzo loggiato. Possibiltà di acquisto garage. Costruzione in Classe A4 per isufruire di standard abitativi elevati. Il capitolato offerto dalla direzione lavori propone materiali di alta qualità prevedendo già pavimentazione in rovere nella zona notte e ceramiche di prima scelta nei restanti ambienti, ventilazione meccanica per il ricircolo dell'aria, porte scorrevoli ove necessarie, predisposizione di impianto anti intrusione con sensori posizionati in tutte le aperture (porta ingresso e finestre). Tecnologie innovative verranno utilizzate al fine di limitare le emissioni inquinanti; l'intera costruzione sarà dotata di impianto di riscaldamento e raffrescamento centralizzato conforme alle recenti normative europee e prevede pannelli radianti a pavimento per il riscaldamento mentre, per il sistema di raffrescamento, sono previsti split ad acqua con contabilizzazione del calore per ogni singola unità abitativa. L'impianto fotovoltaico fara' da supporto all' impianto elettrico condominiale. Disponibili garages di diverse metrature. Visitate il nostro sito e contattateci per ulteriori dettagli ed informazioni. | ||||||||||||||||||||||||||
|
RIMINI - NUOVA COSTRUZIONE |
| Riferimento: APPARTAMENTO 3 |
|
Mq 102
Piano Primo
|
| Informazioni in ufficio |
|
Calcola la rata del mutuo
|
0541 1795200 |
![]() RICHIEDI INFORMAZIONI SU QUESTO IMMOBILE |
STAMPA |



Associato 2015